Descripción
Hogares de leña
Cualquier descripción se nos queda corta para explicar la calidad de los hogares Austroflamm.
Respecto a su funcionamiento, probablemente uno de los mejores del mundo, nos encontramos ante aparatos tremendamente eficaces en toda su gama:
Sus rendimientos por encima del 78% nos indican aparatos con una capacidad para calentar realmente alta con consumos mínimos de leña.
Las emisiones de CO por debajo del 0,12% los convierten en aparatos muy respectuosos con el medio ambiente además de indicar una calidad de combustión excepcional.
Y por último y quizá lo más importante, sus emisiones de polvo a la atmósfera que hacen palidecer a cualquier otro aparato del mercado con valores por debajo de 40 mg/Nm³ en toda la gama. Estos valores son los que se exigirán a partir del año 2015 en Alemania aunque Austroflamm los consigue desde el año 2010. Unos valores tan bajos proporcionan una combustión realmente ecológica para el medio ambiente y altamente limpia y eficaz para nuestro aparato.
Respecto a su calidad, dispone de los más avanzados sistemas para regulación de aire de combustión, sistemas de autocierre de puertas, el innovador material del interior Keramott , sistemas de acumulación de calor Heat Memory System, campanas de convección, marcos decorativos por no mencionar los excepcionales acabados.
Respecto a su tecnología, el departamento I+D de Austroflamm estudia e innova año tras año para ofrecer siempre las mejores características en sus modelos siendo lo más destacado:
Sistemas de acumulación de calor Heat Memory System (HMS) con el que el aparato nos proporciona calor hasta 9 horas después de haberse acabado el fuego.
Material interior altamente refractario, Keramott, construido a base de oxido de titanio capaz de reflejar todo el calor a la cámara de combustión.
Todas estas virtudes hacen que el cliente que prueba un aparato Austroflamm no desea volver a ningún otro tipo de aparato.
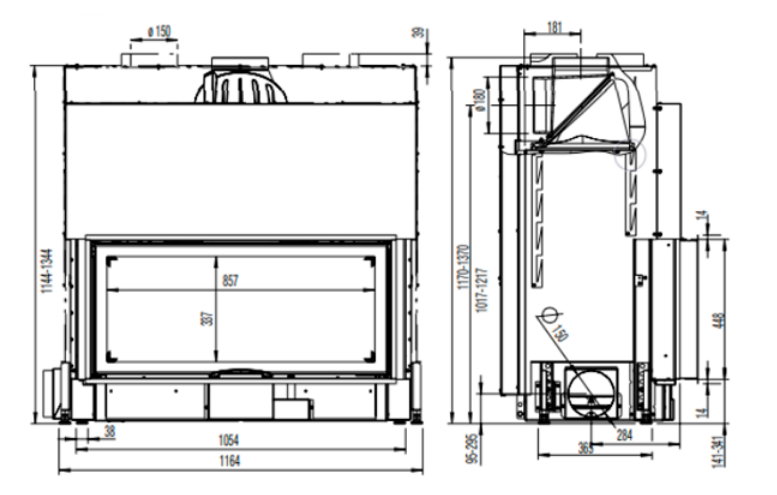
Ficha técnica
Potencia máxima (kW) 12
Campana de convección Sí
Estanca Sí
Número de caras 1
Sistema de ventilación Sí, campana de convección
Tipo de puerta Guillotina
Medidas
ALTURA TOTAL (MM)1170
ANCHURA TOTAL (MM)1164
PROFUNDIDAD TOTAL (MM)632







