Descripción
Cocinas de leña
logotipo del fabricante, Wamsler
La cocina K128 es un modelo clásico robusto y elegante.
Dispone de un espacioso horno, cajón cenicero de gran capacidad y un cajón para guardar leña tambien muy grande.
La cámara de combustión esta dotada de un mecanismo regulable por el cual en verano subimos la reja de la base y reducimos la capacidad de carga disminuyendo asi el calor emitido a la estancia , aumentando la velocidad para calentar la cocina y disminuyendo el consumo. En la posición de Invierno rebajaremos la altura de la parrilla para tener mayor capacidad de calefacción.
Asimismo incorpora unos pies regulables en altura ( hasta 5cm ) para nivelar o elevar la cocina y que ajuste perfectamente.
Sus 7 kW de potencia nominal nos permitirán calentar estancias de unos 75m2 con altura de techos de 2,5m con conumos mínimos.
Cuenta con uno de los mejores rendimientos del mercado superando las mas estrictas homologaciones europeas, tambien es una cocina respetuosa con el medio ambiente superando nuevamente las mas rigurosas especificaciones de emisión de CO , polvo o NOx en Alemania o Austria y obteniendo la máxima calificación.
Respecto a su versatilidad es un modelo que incorpora bastantes opciones.
Color de terminación en blanco o marrón.
Posibilidad de añadir una tapa.
Plancha superior en acero de 8mm o cristal vitrocerámico.
Separadores laterales de 55mm o 110mm para integrar o dejar distancia de seguridad.
Realización con cámara de combustión a izquierda o derecha.
Opcion de salida de humos en el lateral izquierdo, lateral derecho, parte trasera o parte superior.
( Salida superior solo disponible en versión con plancha de acero )
Ficha técnica
Potencia máxima (kW) 7
Etiqueta energética A
Tipo de puerta Abatible
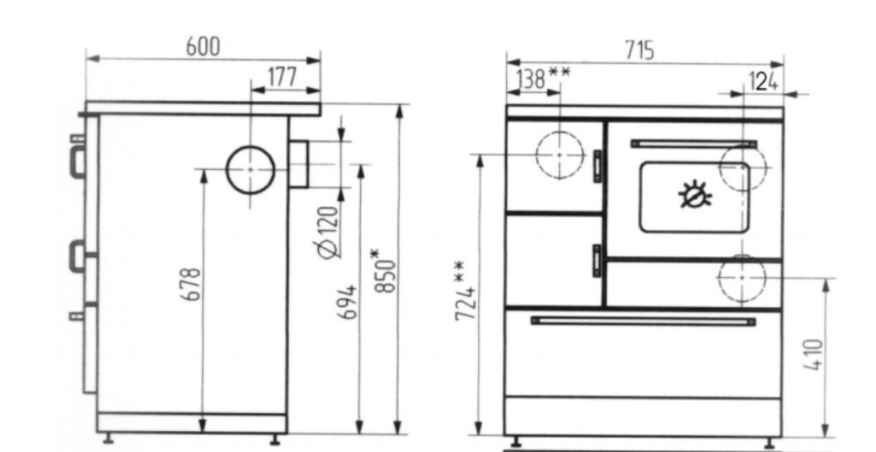
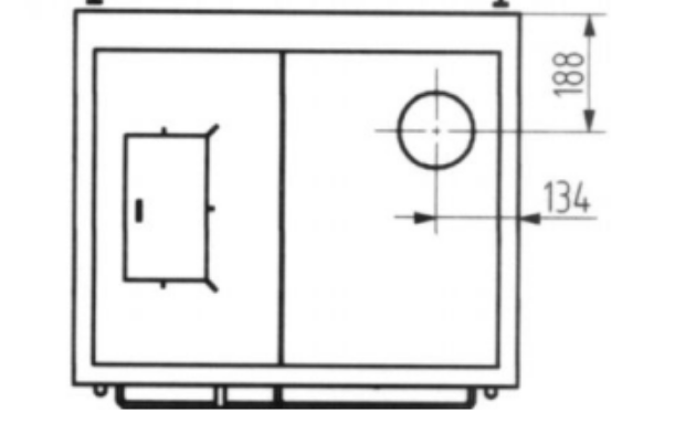
Medidas
ALTURA TOTAL (MM)850
ANCHURA TOTAL (MM)715
PROFUNDIDAD TOTAL (MM)600






